Bedford Road, London SW4

LAND SOLD (with approved planning)

A secluded garden site with planning approved to build a detached architecturally-designed three-bedroom contemporary house with south-facing garden in Clapham.

Register for similar projects

020 8050 7287

hello@hiddenhouseproject.com

Google Review - Architect Developer Client

We chose Hidden House Project to handle the sale of our plot of land in London, after becoming disillusioned with several well-known real estate companies.

Andreina was a breath of fresh air—she truly understood the task at hand, gained in-depth knowledge of the plot and its permitted project, and went the extra mile to flexibly accommodate viewings. She was also very proactive in engaging with potential buyers, securing multiple offers where others had fallen short.

Once we accepted an offer, she took the initiative to liaise between all parties, including solicitors and buyers, ensuring clear and effective communication throughout the process, back to us. We couldn’t be more thankful and would certainly love to work again with HHP in the future.”

- Mina & Adriana

THE SITE

This quiet backland site is located off an established residential road, and it is accessed via a gated pathway. It has a distinct English walled-garden feel and there is a small shed towards the rear.

The plot is fully surrounded by private residential gardens and beloved allotments, making for a peaceful verdant setting. It receives great amounts of sun exposure throughout the day - its main aspect is south-facing.

THE APPROVED DEVELOPMENT PLAN

Pavilion House was artfully designed by architect Mina Shafik. The proposal has a respectful relationship with the natural surroundings, and it stands as a sculptural yet discrete pavilion. Accommodation expands over two storeys, and its overall design was optimised for space, natural light ingress and privacy.

Access to the walled property is through a metal gate. Upon entrance, you are immediately welcomed by a carefully landscaped south-facing garden. The sculptural feel of the pavilion follows you indoors. The building is topped by long roof lights and pitched ceilings. Full height glazing on two sides of the front façade allows it to act as a lantern to the entrance gallery as well as the sociable living areas below.

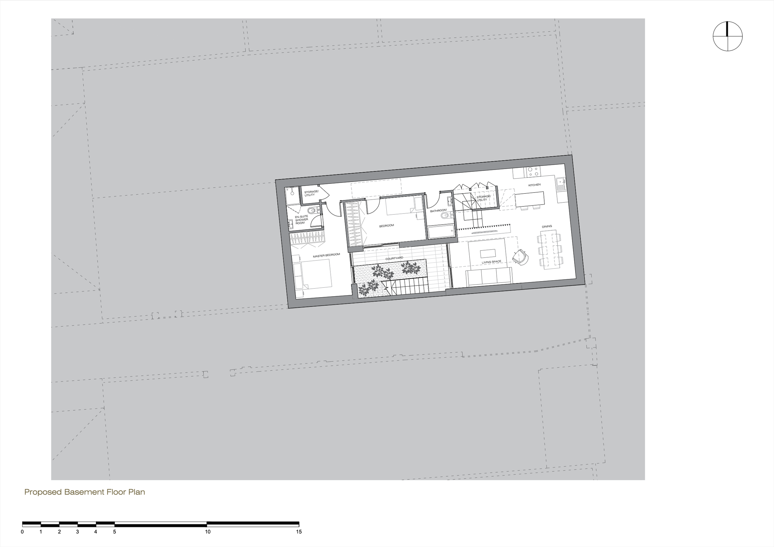
A room with a private bathroom is found at the end of the corridor. This dynamic space can be set up as a comfortable double bedroom as well as the perfect home office, separate to the rest of the home. This room benefits from its own private balcony, accessed by a fully-glazed door.

A staircase leads to further accommodation in the lower level, which is arranged around a private courtyard. The living, kitchen and dining areas have an open plan design with a distinct separation from the sleeping quarters. The impactful living room space has double-height ceilings and a floor-to-ceiling glazed wall at its westerly end. Sliding glazed doors allow seamless integration with the courtyard, perfect for entertaining and alfresco dining.

A hallway that leads you into the sleeping areas. A cleverly positioned skylight atop this space maximises natural light ingress and provides a playful sight of the garden above. The east-facing principal bedroom has an ensuite shower room. The third double bedroom is south-facing and a separate bathroom is located next to it.

There is plenty of storage space throughout the house, from multiple utility and storage cupboards to considerable wardrobe space in each bedroom. Secure cycle storage is also included in the design.

The sunken courtyard connects to the main garden via a railed staircase. This connection facilitates outdoor entertaining and provides a secondary entry route to the house.

The plan contemplates the incorporation of open railing to the southerly wall to facilitate natural light ingress to all spaces in the property. It also encompasses the improvement of the access pathway by installing grass-crete blocks and integrated ground lighting, an elegant solution that increases the comfort and safety of the property access while retaining the natural feel of its settings.

Planning application 21/03960/FUL - Lambeth Council.

LOCAL LIFE 

Despite its discrete setting, this development project is located just a short walk from local amenities, green areas and transport links.

Clapham Commons & Clapham High Street are lively areas with a wide range of restaurants, cafes, shops, art & entertaining venues and green & sports spaces; including recently opened Crispin at Studio Voltaire, Lane Eight Coffee, Trude’s Grocery, M.Moen & Sons, Lina Store & Picture House cinema - all within a 15-minutes walk.

Clapham North station (underground) and Clapham High Street station (overground) are both less than 10-minutes walk away. Plenty of bus routes service the local area.

ADDITIONAL INFORMATION

This listing contains a collection of computer generated images of the approved project and real photos of the site.

  • Tenure: Freehold

  • Service charge: NIL

  • Ground Rent: NIL

 

Request a viewing